一覧に戻る

鶴ヶ島市脚折 中古戸建

 2026年04月17日時点

販売中

外観

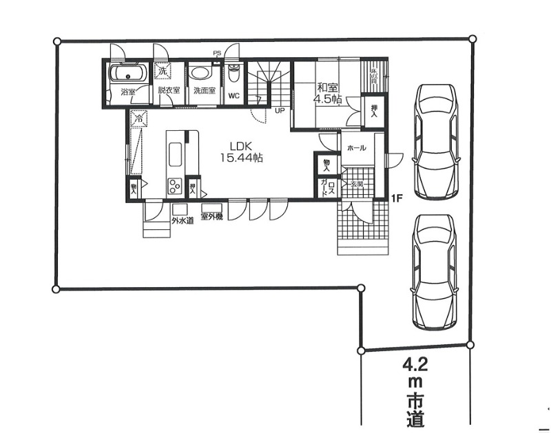
間取り図1F、区画図

間取り図2F

カースペース

LDK

キッチン

キッチン収納

洋室

洗面化粧台

価格 3280万円
住所・最寄り駅 鶴ヶ島市大字脚折
東武東上線 若葉駅 徒歩15分
間取り/間取り詳細 6LDK  LDK15.44帖 / 和室4.5帖 / 洋室5.33帖 / 洋室5.0帖 / 洋室4.5帖 / 洋室4.5帖 築年月 2010年10月
建物面積/土地面積 112.50㎡/165.3㎡ 階数 地上2階

鶴ヶ島市脚折 中古戸建のPRポイント

オススメポイント!!

・エアコン3基付き
・光と通風を考慮した南東向き住戸
・落ち着いたおしゃれな外観

【学区域】

・鶴ヶ島第一小学校・・・徒歩20分(約1,400m)
・鶴ヶ島中学校・・・徒歩24分(約1,600m)


設備・条件

  • 平坦地

  • 南道路

  • 床暖房

  • トイレ2か所

  • 駐車場2台以上

  • 照明器具付き

  • 冷暖房

  • 和室

  • リビングダイニング15畳以上

  • リビングに階段あり

  • カウンターキッチン

  • システムキッチン

  • 食器洗い乾燥機

  • コンロ3口以上

  • バス・トイレ別

  • 洗濯機置き場

  • 独立洗面台

  • シャワートイレ

  • バルコニー

  • クローゼットシューズボックス

鶴ヶ島市脚折 中古戸建の物件概要

住所 鶴ヶ島市大字脚折
交通機関 若葉駅 徒歩15分
間取り/間取り詳細 6LDK / LDK15.44帖 / 和室4.5帖 / 洋室5.33帖 / 洋室5.0帖 / 洋室4.5帖 / 洋室4.5帖
建物面積 112.5㎡ 土地面積 165.3㎡
計測方法 登記
主要採光面 建物構造 木造
都市計画 市街化区域
階数 地上2階 築年月 2010年10月
築年月備考
設備・条件 平坦地/南道路/床暖房/トイレ2か所/駐車場2台以上/照明器具付き/冷暖房/和室/リビングダイニング15畳以上/リビングに階段あり/カウンターキッチン/システムキッチン/食器洗い乾燥機/コンロ3口以上/バス・トイレ別/洗濯機置き場/独立洗面台/シャワートイレ/バルコニー/クローゼットシューズボックス/
水道 公営水道、本下水  ガス プロパンガス
土地権利 所有権のみ セットバック 不要
接道状況 一方
接道1 南東側 公道 幅員4.2m
地目 宅地 用途地域 第一種中高層住居専用地域
建ぺい率 60% 容積率 200%
引渡 相談 地勢 平坦
現況 空家 国土法届出
取引形態 仲介 物件管理コード 2026041601
備考・特記事項 別途、ガス供給契約有
図面と現況に相違がある場合は現況優先とします。
建築確認番号